新中式風格家裝住宅裝修設計 海印花園家裝項目
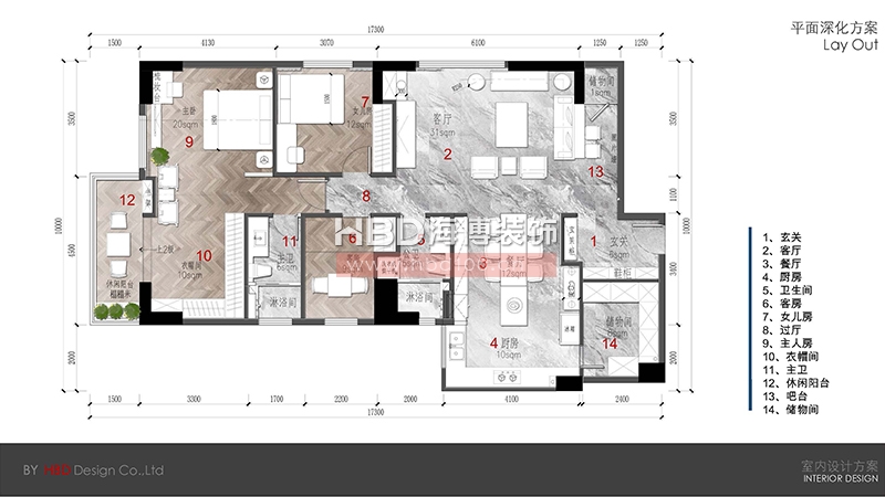
面積 :150平方米 / 地址 :廣州市越秀區 / 點擊 :841
本項目位于廣州市越秀區海印花園,HBD海博裝飾設計主要圍繞著春天的遐想,以簡潔明快的新中式設計風格為主調,以春的氣息給人帶來遐想,從而創造一個溫馨,健康浪漫的家庭環境。
本案采用家裝住宅裝修設計項目客廳地板采用大理石材,既大氣又容易清洗。總體色調以淺色系為主,局部以亮色點睛,能彰顯氣質和視覺美感。給人眼前一亮的感覺。方形吊頂,增大空間感,內置多個筒燈滿足不同光線的需要。中間裝飾實用水晶大吊燈,給人一種很柔軟舒適的空間。

新中式風格家裝住宅裝修設計 海印花園

新中式風格家裝住宅裝修設計 海印花園

新中式風格家裝住宅裝修設計 海印花園

新中式風格家裝住宅裝修設計 海印花園

新中式風格家裝住宅裝修設計 海印花園

新中式風格家裝住宅裝修設計 海印花園

新中式風格家裝住宅裝修設計 海印花園

新中式風格家裝住宅裝修設計 海印花園
- 上一案例:碧桂園家裝住宅裝修設計 十里江灣
- 下一案例:廣州家裝住宅裝修設計方案 云山熹景許總雅居
137-1150-4887
在線咨詢
